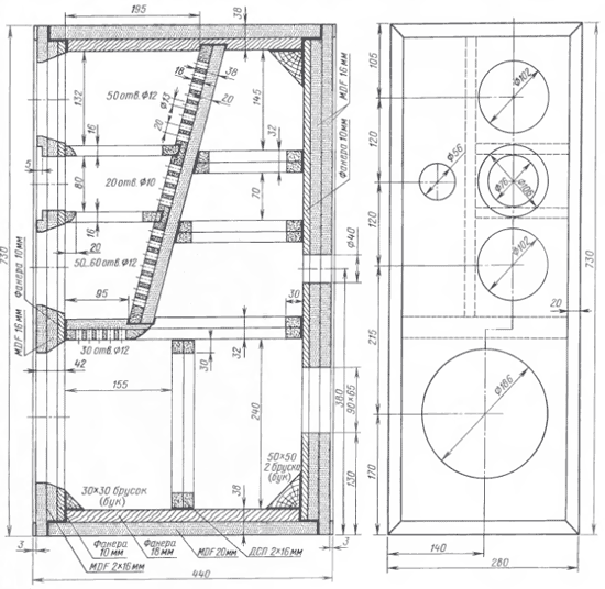
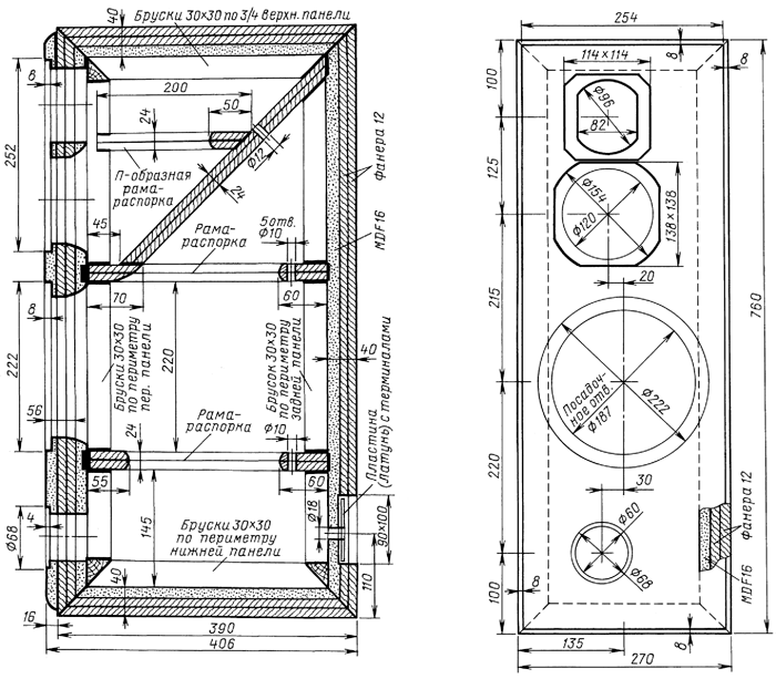
Акустика для дома чертежи - найдено 30 изображений
Найдено изображений: 30






























Смотрите также
- Ворота складские распашные с дверью чертеж
- Как сделать прическу а4
- Калининград фото вокзал
- Лунный календарь стрижек сайт
- Ново место фото
- Нужны картинки с добрым вечером
- Перманентный макияж бровей в наро фоминске цены
- Планировка солнечного дома
- Правильная схема подключения водопровода в квартире
- Радиатор керми с нижним подключением схема подключения

